dom mieszkalny Piława
Pilawa Pokaż na mapie ›
Ogłoszenie archiwalne Wygasło: Środa, 29 Październik, 2025 22:40
1 485 000 zł
10385 zł/m2
Szczegóły ogłoszenia
- Kategoria: Domy / Sprzedaż
- Powierzchnia:143 m2
- Rynek:Wtórny
- Rok budowy:2025
- Sprzedaż:Pośrednik
- Cena: 1 485 000 zł / 10385 zł/m2
Opis oferty
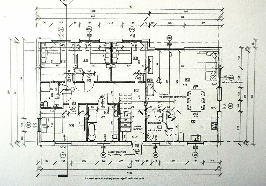
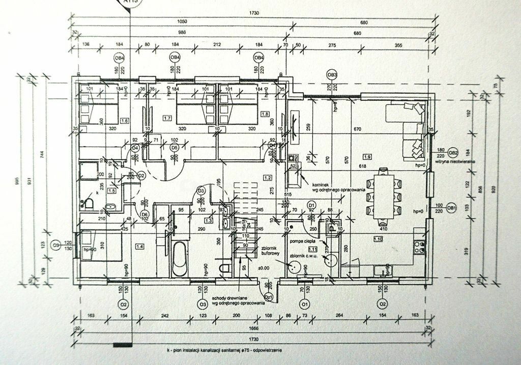
Na sprzedaż nowoczesny dom parterowy z basenem wybudowany 2025 roku, położony jedyne 100 metrów od jeziora Pile. Ten wyjątkowy dom o powierzchni całkowitej 143 m² oferuje pełne wyposażenie, funkcjonalny układ pomieszczeń oraz nowoczesny system ogrzewania pompą ciepła. Całość zbudowana z keramzytu, co gwarantuje wysoką izolacyjność oraz trwałość konstrukcji. Nieruchomość dysponuje też własnym basenem, co stanowi idealne rozwiązanie dla tych, którzy cenią sobie relaks i prywatność. Basen o podgrzewany i podświetlany z przeciwprądem o pow. 25 m2. może być wykorzystywany przez domowników przez cały rok.Wewnątrz domu, jasne i przestronne pomieszczenia rozplanowane są w sposób, który maksymalizuje wygodę mieszkania. Design i wyposażenie wnętrza zostały starannie dobrane, aby sprostać nawet najbardziej wymagającym gustom. Funkcjonalny rozkład pomieszczeń zapewnia komfort użytkowania domu na co dzień. Na powierzchnię mieszkalną składają się: duży salon z jadalnią i częścią kuchenną, 4 pokoje, 2 łazienki oraz pomieszczenie gospodarcze i korytarz z możliwością dostawienia schodów na poddasze które może być zaadoptowane na kolejne pomieszczenia. Nieruchomość sprzedawana jest z pełnym wyposażeniem.
Ogród wokół domu oferuje przestrzeń do wypoczynku na świeżym powietrzu oraz miejsce na rodzinne grillowanie. Dodatkowo, bliskość jeziora Piława jest nie tylko doskonałym miejscem na spacer, ale też oferuje liczne możliwości uprawiania sportów wodnych i rekreacji a do pięknej zadbanej plaży jest zaledwie 2 minuty pieszo.
Piława, malowniczo położona wśród lasów i jezior, to idealne miejsce dla tych, którzy szukają ucieczki od miejskiego zgiełku, ceniąc sobie bliskość natury. Z doskonałą infrastrukturą i dostępem do lokalnych atrakcji, Piława zapewnia zarówno spokój, jak i wygodę życia na najwyższym poziomie.
Nie przegap okazji, aby stać się właścicielem tego wyjątkowego domu. Zapraszamy na prezentację.
Czy wiesz, że możemy przygotować dla Ciebie prezentację on-line nieruchomości? Skontaktuj się z naszym Agentem i zapytaj o szczegóły.
Pomimo, iż Doradcy Metrohouse przykładają szczególną staranność do rzetelnego prezentowania informacji o nieruchomości, nie zawsze jest możliwa weryfikacja wszystkich danych przekazanych od osób trzecich. Niniejsza prezentacja oferty nie jest ofertą w rozumieniu Kodeksu Cywilnego i ma charakter wyłącznie informacyjny.
Sprawdź zainteresowanie tym ogłoszeniem
Wyświetlenia
Data dodania
Ostatnio widziany
Obserwujących
Wysłane zapytania
Odsłony telefonu
Powiadom o podobnych ogłoszeniach
Lokalizacja: Pilawa
Kategoria: Nieruchomości » Domy » Sprzedaż
Cena: od 1262500 zł do 1708000 zł Powierzchnia : od 122 m2 do 164 m2
Chcę otrzymywać powiadomienia o nowych ofertach
To ogłoszenie jest archiwalne i może być nieaktualne.
- Wypromuj ogłoszenie
- Zgłoś naruszenie
- Edytuj/usuń ogłoszenie
- Udostępnij ogłoszenie
- Dodaj na Facebook

































